SALTA 1828 08 03
  • u$s 112.500

Descripción

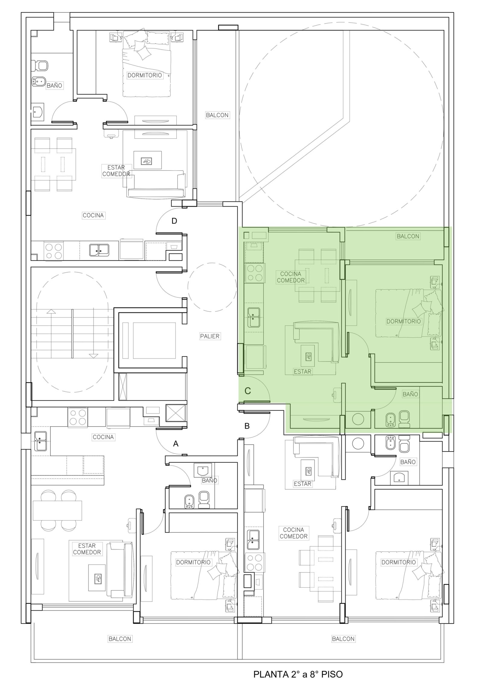
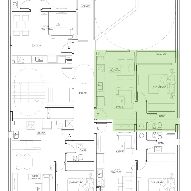
EDIFICIO TIRRENO

Ubicado estratégicamente a pocos metros de la Costanera del Río, el centro de la ciudad y el reconocido Bv. Oroño, este departamento ofrece una oportunidad única de vivir en una de las zonas más privilegiadas de Rosario. Con un diseño moderno, sólida construcción y acabados de alta calidad, este departamento a estrenar se presenta como una excelente opción para quienes buscan confort y estilo.

Con orientación Norte, el inmueble dispone de un luminoso living comedor diario con cocina integrada, creando un ambiente amplio y acogedor ideal para la vida diaria. El pasillo íntimo conduce a un baño compartimentado equipado con un receptáculo de ducha, asegurando privacidad y funcionalidad. El dormitorio cuenta con un placard completo y acceso a un balcón que proporciona un espacio adicional al aire libre.

Además, los residentes del Edificio Tirreno pueden disfrutar de una variedad de amenities de primer nivel, incluyendo una piscina, gimnasio, solárium y un quincho con parrillero, ideales para el entretenimiento y la relajación.

Este departamento no solo ofrece un excelente espacio para vivir, sino que también está dotado de todos los servicios esenciales como agua corriente, cloacas, electricidad, pavimento y alumbrado público, asegurando un estilo de vida cómodo y conveniente en el corazón de Rosario. Con una ubicación inmejorable y características excepcionales, esta propiedad representa una inversión valiosa para aquellos que buscan un hogar moderno en una zona céntrica.

  • Dirección: SALTA AL 1800
  • Ciudad: Rosario
  • Estado/condado: Santa Fe

Detalles

Actualizado en marzo 12, 2026 a 9:03 pm
  • Superficie de la propiedad 39.09 M²
  • Dormitorio 1
  • Baño 1
  • Garaje 0
  • Tipo de propiedad Departamentos
  • Orientación Norte
  • Situación Vacía
  • Condición Excelente
  • Cantidad de pisos 9
  • Disposición Contrafrente

Propiedades similares

Comparar listados

Comparar