FINCAZUL – HIP. YRIGOYEN Y CAESAR JUAN – UNIDAD F Y G

  • u$s 112.000
Argentina , Santa Fe , Funes , Paseo del Norte, FINCAZUL - HIP. YRIGOYEN Y CAESAR JUAN - UNIDAD F Y G
  • Casas
  • Tipo de propiedad
  • 2
  • Dormitorios
  • 1
  • Garaje
  • 1
  • Baño
  • 151.68
Venta
FINCAZUL – HIP. YRIGOYEN Y CAESAR JUAN – UNIDAD F Y G
Argentina , Santa Fe , Funes , Paseo del Norte, FINCAZUL - HIP. YRIGOYEN Y CAESAR JUAN - UNIDAD F Y G
  • u$s 112.000

Descripción

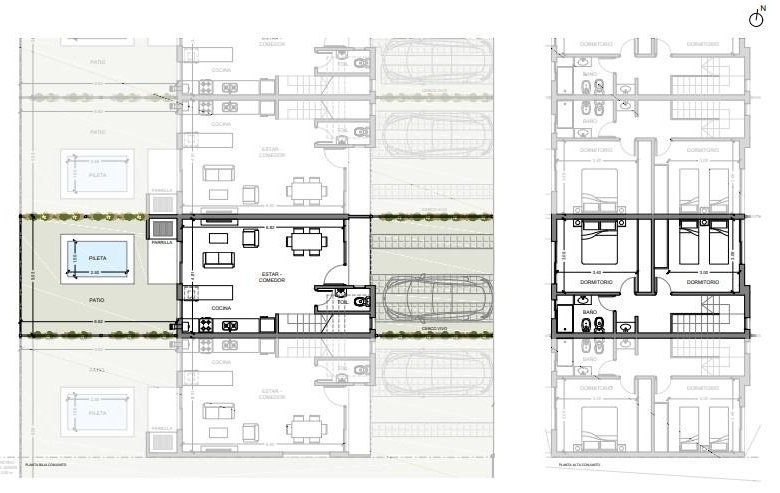
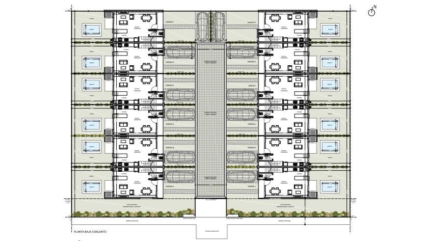
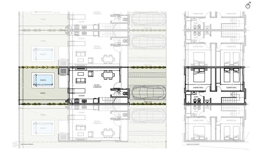
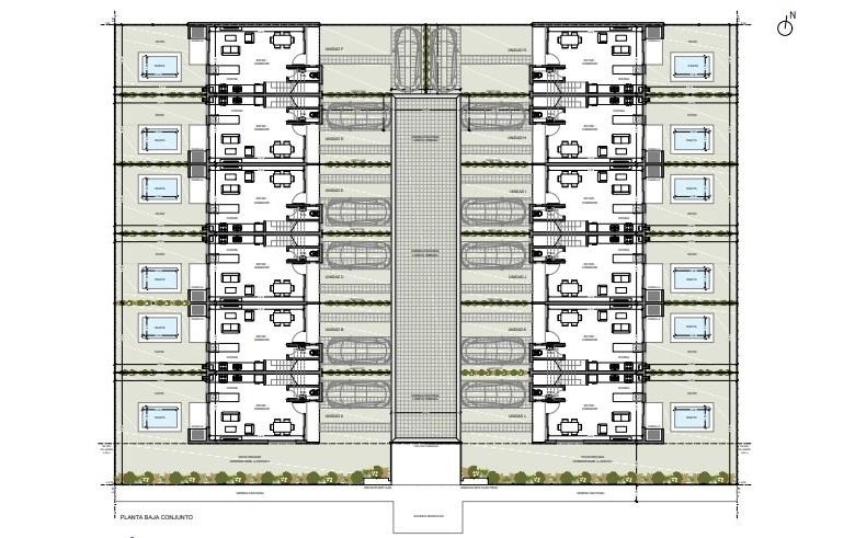
Casa tipo dúplex. En el ingreso un espacio vehicular. PB: Ingreso a amplio living comedor con ingreso a cocina integrada, espacio para lavarropas automático, toilette, patio de uso exclusivo de 67 m² aprox. con parrillero y pileta.
PA: dos dormitorios con placares y baño con receptáculo de ducha o bañera.

  • Dirección FINCAZUL - HIP. YRIGOYEN Y CAESAR JUAN - UNIDAD F Y G
  • Ciudad Funes
  • Estado/condado Santa Fe

Detalles

Actualizado en enero 12, 2026 a 9:07 pm
  • Superficie de la propiedad: 151.68 M²
  • Dormitorios: 2
  • Baño: 1
  • Garaje: 1
  • Tipo de propiedad: Casas
  • Orientación: Noreste
  • Situación: Vacía
  • Condición: ---
  • Cantidad de pisos: 2

Propiedades similares

Comparar listados

Comparar
Dunod
  • Dunod