FINCAZUL
Emprendimiento
Fecha de entrega: 01/12/2027
Emprendimiento
Fecha de entrega: 01/12/2027
FINCAZUL
Descripción
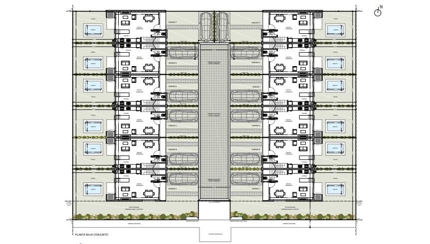
Fincazul. Tu casa condominio en Funes. Apto Mascotas
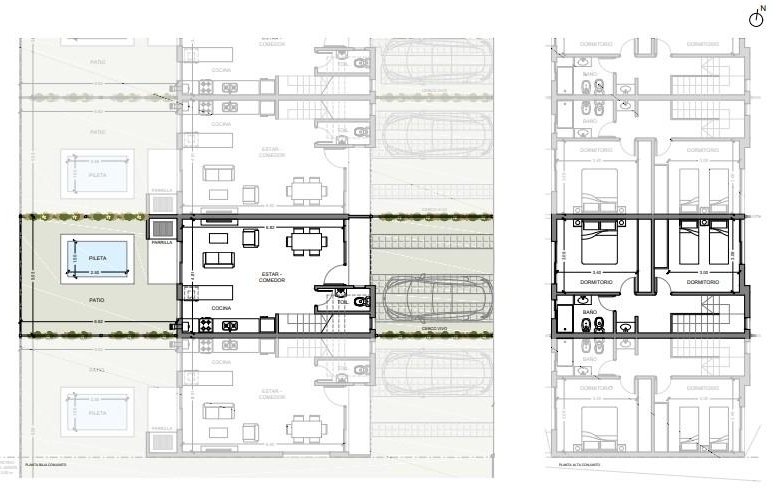
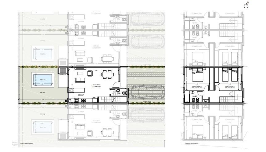
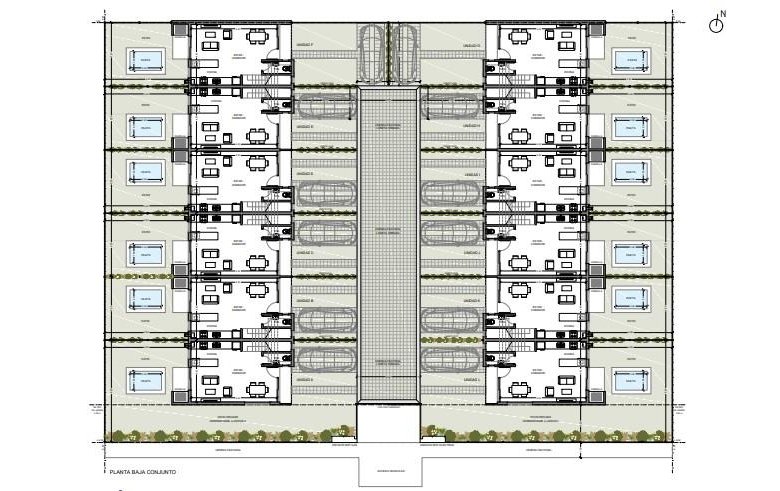
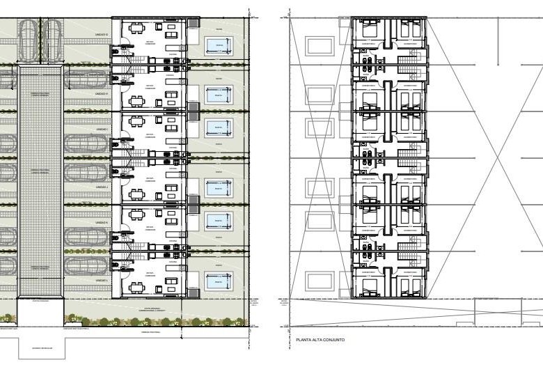
Conjunto privado de doce casas individuales con portón de acceso. Incluye Cochera
Fachadas orientadas hacia el espacio de circulación interna, 15 metros de distancia entre frentes de cada casa.
Casas de 2 dormitorios con jardín, piscina y parrillero propios. Agua potable tratada con planta de tratamiento
Viví en Funes muy cerca de Fisherton, con fuerte proyección de crecimiento de valor.
Dirección
Abrir en Google Maps-
Dirección: HIPOLITO YRIGOYEN Y CAESAR JUAN
-
Ciudad: Funes
-
Estado/condado: Santa Fe
Detalles
Actualizado en mayo 16, 2026 a 9:00 am-
Tipo de propiedad Condominio
-
Fecha de entrega 2027-12-01
Unidades Disponibles
FINCAZUL – HIP. YRIGOYEN Y CAESAR JUAN – UNIDAD A y L
- u$s 150.290
FINCAZUL – HIP. YRIGOYEN Y CAESAR JUAN – UNIDAD B-E – H-I-J
- u$s 131.645
FINCAZUL – HIP. YRIGOYEN Y CAESAR JUAN – UNIDAD F Y G
- u$s 136.165