Sarmiento 874
  • $ 1.950.000

Descripción

– ALQUILER CON ACTUALIZACION CUATRIMESTRAL ICL –
Ubicado en una de las zonas más dinámicas y transitadas de Rosario, este moderno local comercial ofrece una excelente oportunidad para emprendedores y empresas que buscan establecerse en un punto clave de la ciudad. Con un total de 120 metros cuadrados cubiertos, distribuidos en dos plantas, el local cuenta con un diseño funcional y adaptable a una amplia variedad de rubros.

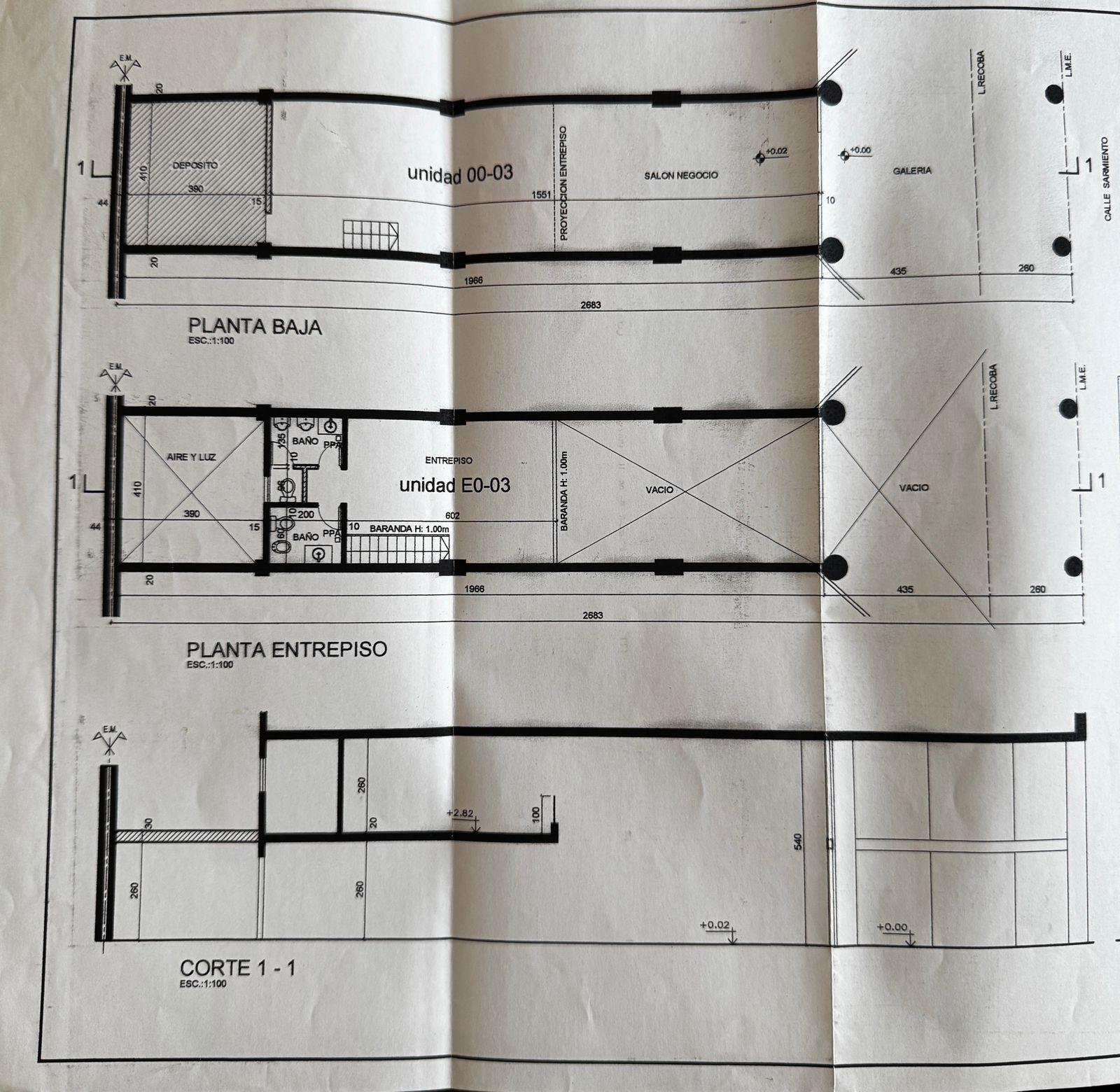
En la planta baja, el espacio se presenta ideal para exhibir productos, atención al público o servicios de alto tránsito. con gran visibilidad desde la calle Sarmiento, asegurando que el negocio atraiga la atención de quienes transitan por la zona. Además, la planta baja está preparada para ofrecer comodidad tanto al personal como a los clientes, con acceso fácil y cómodo.
La planta alta, de 33m tamaño, permite una distribución más privada o bien complementaria al servicio que se ofrezca en el primer nivel. Ideal para oficinas, almacenamiento o un segundo espacio de atención, esta planta tiene la flexibilidad de adaptarse a las necesidades específicas del negocio.
El local forma parte de una galería comercial, lo que garantiza un flujo constante de clientes potenciales, aprovechando la sinergia con otros comercios de la zona. Además, la ubicación sobre la calle Sarmiento, una arteria de alto tránsito en Rosario, asegura una gran visibilidad y accesibilidad.
Este local es una opción excelente para negocios que buscan una ubicación estratégica con amplias posibilidades de expansión y desarrollo.

Información de Alquiler

Importe

Precio primer semestre: $1.950.000,00

Gastos Iniciales

Honorarios:$3.510.000 (+IVA: $737.100)
Depósito en garantía:Consultar
Sellado:$175.500
Informes Personales:$13.500
Informes Propiedades:$50.000
Total:$6.436.100

(*) Para propiedades ubicadas en Rosario. Consultar por otras localidades. Valores sujetos a cambios. Al monto total deberán sumarse las fojas.

Gastos Mensuales (APROXIMADOS)

Expensas:
TGI:
Agua:$26.000
Póliza de Incendio:
Gastos administrativos:$58.500 (+IVA: $12.285)
Total:$2.034.500

*Los montos expresados son a mero título informativo y quedan sujetos a cambios sin previo aviso.

  • Dirección: SARMIENTO AL 800
  • Ciudad: Rosario
  • Estado/condado: Santa Fe

Detalles

Actualizado en mayo 11, 2026 a 9:02 am
  • Superficie de la propiedad 134.00 M²
  • Dormitorio 0
  • Baños 2
  • Garaje 0
  • Año de construcción 32
  • Tipo de propiedad Locales
  • Orientación Este
  • Situación Habitada
  • Condición Excelente
  • Cantidad de pisos 2
  • Disposición Frente

Propiedades similares

Comparar listados

Comparar